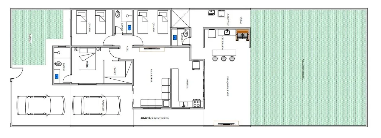
Imóvel em excelente localização, próximo de escolas, mercados possui 3 quartos, sendo 1 suíte ampla com closet, sala, cozinha, área Gourmet.
Entrada Facilitada.
Previsão para conclusão da obra Agosto/2024.
Casa Térrea
2
3
-
300 m²
145.39 m²
2
-



Imóvel em excelente localização, próximo de escolas, mercados possui 3 quartos, sendo 1 suíte ampla com closet, sala, cozinha, área Gourmet.
Entrada Facilitada.
Previsão para conclusão da obra Agosto/2024.
Fale conosco! Estamos prontos para te oferecer a melhor assessoria imobiliária.